Ferienhaus mit Meerblick und Wintergarten in Årsdale
Indenmarken - Nexö - 3740 - Svaneke
8 Personen
Gemütliches Ferienhaus in Årsdale mit Meerblick, Wintergarten und großem Garten für erholsame Urlaubstage.
Ihre Ferienunterkunft
- 8 Personen
- Kein Haustier
- Nichtraucher
- 4 Schlafzimmer
- 1 Badezimmer
- Wasser 170
- Einkauf 3600
Ausstattung
Ausblick
-
Meerblick vom Ferienhaus
-
Meerblick vom Standort
Bitte beachten
-
Keine Jugendgruppen auf Anfrage
-
Rauchen ist verboten
Draußen
-
Feuerstelle
-
Geschäft3,6 km
-
Grill1
-
Größe des Grundstücks978 m²
-
Landschaftsgarten
-
Meer170 m
-
Parkplatz beim Haus
-
Terrasse
-
Wintergarten
Einrichtung
-
2 Ebenen
-
Anzahl Erwachsene inkl. 4-11 Jahre8
-
Anzahl Kinder (0-3 Jahre)1
-
Baujahr1935
-
Bebaute Fläche146 m²
-
District heating
-
Ferienhaus
-
Gefrierkapazität (Anzahl Liter)290
-
Hochstuhl1
-
Holzofen1
-
Jahr der Renovierung2020
-
Renovierung1994
-
Waschmaschine1
Hobbyraum
-
Mini-Billardtisch
-
Mini-Tischfußball
-
Mini-Tischtennis
Küche
-
Anzahl der Induktionskochplatten4
-
Heißluftofen1
-
Kühlschrank1
-
Mikrowelle1
-
Spülmaschine1
Multimedien
-
Anzahl der Fernseher2
-
Bluetooth Lautsprecher1
-
Internet drahtlos
-
Keine TV-Kanäle - nur Streaming
-
Radio
-
Smart TV2
Schlafverhältnisse
-
Anzahl der Schlafzimmer4
-
Doppelbett (Anzahl der Schlafplätze)4
-
Einzelbett (Anzahl der Schlafplätze)2
-
Kinderbett1
-
Verstellbares Bett (Anzahl der Schlafplätze)2
WC und Bad
-
Anzahl der Badezimmer1
-
Anzahl der Gästebäder1
-
Duschkabine
-
Fußbodenheizung1
-
Toiletten2
Zugang zur Ferienunterkunft
-
Schlüsselkasten mit Code
Beschreibung
Årsdale ist ein kleines Fischerdorf, daß sich an den Hängen hinunter zur felsigen Küste erstreckt. In den letzten Jahren hat sich das Fischerdorf in ein kleines Urlaubsparadies verwandelt, mit einem bürgerbetriebenen Kaufmannsladen. Mikkeller Burger ist zusammen mit anderen Restaurants in den Ort gezogen, und die alte Räucherei beherbergt heute ein modernes, stimmungsvolles Restaurant.
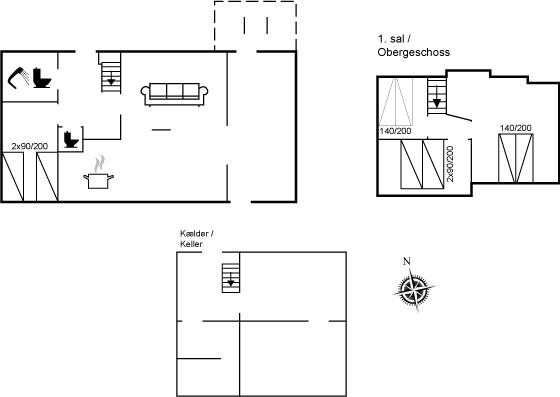
Das große Ferienhaus liegt mitten im Ort – etwas zurückgesetzt, sodass du Ruhe und Entspannung findest, wenn du sie brauchst. Im Erdgeschoss gibt es neben dem Wohnzimmer und dem Wintergarten eine gut ausgestattete Küche, ein Badezimmer sowie eine Gäste-Toilette. Ein Schlafzimmer mit verstellbaren Betten befindet sich ebenfalls im Erdgeschoss. Die weiteren Schlafzimmer sind im ersten Stock. Im großen Schlafzimmer mit der herrlichen Aussicht durch die großen Fenster in der Gaube gibt es eine kleine gemütliche Ecke – perfekt zum Lesen, Stricken oder einfach zum Rausschauen. Die Waschmaschine befindet sich im Keller. Eine Treppe führt hinauf zum Eingangsbereich.
Am Ende des Wintergartens findest du eine erhöhte Holzterrasse, die sich ideal für ein Mittagessen oder des Nachmittagskaffee anbietet – von hier aus kannst du die Kinder im Blick behalten, während sie im ruhigen Garten spielen.
Das Haus ist ganzjährig isoliert und wird mit Fernwärme beheizt.
Einrichtung
Das Ferienhaus eignet sich für 8 Personen sowie 1 Kleinkind bis zu 3 Jahren. Die Ferienunterkunft hat eine Wohnfläche von 146 m², ist 2-stöckig, und wurde 1935 gebaut. 1994 wurde die Ferienunterkunft renoviert. 2020 wurde die Ferienunterkunft teilweise renoviert. Haustiere dürfen nicht mitgebracht werden. Es gibt Fernwärme. Die Ferienunterkunft ist mit Waschmaschine ausgestattet. Tiefkühlmöglichkeit mit 290 Liter Nutzinhalt. Es gibt außerdem einen Kaminofen. Für die jüngsten Feriengäste ist 1 Kinderhochstuhl vorhanden.
Draußen
Die Ferienunterkunft liegt auf einem 978 m² großen Gartengrundstück. Die Entfernung zum Meer beträgt 170 m. Die nächste Einkaufsmöglichkeit liegt 3600 m entfernt. Es steht ein offenes Terrassenareal zur Verfügung. Zutritt zu einem Wintergarten.Lagerfeuerstelle. Es steht ein Grill zur Verfügung. Parkplatz auf dem Grundstück.
Hobbyraum
Mini-Billard. Mini-Tischfußball. Mini-Tischtennis.
Schlafverhältnisse
Die Schlafplätze verteilen sich auf 4 Schlafräume. 4 Schlafplätze in Doppelbetten. 2 Schlafplätze in Einzelbetten.2 Schlafplätze in elektrisch verstellbaren Betten. Ferner steht ein Kinderbett zur Verfügung.
Küche
Die Küche ist mit Kühlschrank ausgestattet. Außerdem gibt es 4 Induktions-Kochzonen, Umluftofen, Mikrowelle sowie Geschirrspüler.
WC und Bad
Es gibt 1 Badezimmer mit Duschnische und 2 Toiletten, davon 1 Gästetoilette. Fußbodenheizung in 1 Badezimmer.
Multimedien
2 Smart-TV. Radio.1 Bluetooth-Lautsprecher. Keine Fernsehsender - nur Streaming. Es steht kabellose Internetverbindung zur Verfügung.
Wissenswertes
Keine Vermietung an Jugendgruppen, in denen alle 15-25 Jahre sind. Rauchen ist nicht zugelassen. Bei Nichtbeachtung dieses Verbots wird eine Gebühr von mindestens EUR 420,- erhoben.
Einrichtung
Das Ferienhaus eignet sich für 8 Personen sowie 1 Kleinkind bis zu 3 Jahren. Die Ferienunterkunft hat eine Wohnfläche von 146 m², ist 2-stöckig, und wurde 1935 gebaut. 1994 wurde die Ferienunterkunft renoviert. 2020 wurde die Ferienunterkunft teilweise renoviert. Haustiere dürfen nicht mitgebracht werden. Es gibt Fernwärme. Die Ferienunterkunft ist mit Waschmaschine ausgestattet. Tiefkühlmöglichkeit mit 290 Liter Nutzinhalt. Es gibt außerdem einen Kaminofen. Für die jüngsten Feriengäste ist 1 Kinderhochstuhl vorhanden.
Draußen
Die Ferienunterkunft liegt auf einem 978 m² großen Gartengrundstück. Die Entfernung zum Meer beträgt 170 m. Die nächste Einkaufsmöglichkeit liegt 3600 m entfernt. Es steht ein offenes Terrassenareal zur Verfügung. Zutritt zu einem Wintergarten.Lagerfeuerstelle. Es steht ein Grill zur Verfügung. Parkplatz auf dem Grundstück.
Hobbyraum
Mini-Billard. Mini-Tischfußball. Mini-Tischtennis.
Schlafverhältnisse
Die Schlafplätze verteilen sich auf 4 Schlafräume. 4 Schlafplätze in Doppelbetten. 2 Schlafplätze in Einzelbetten.2 Schlafplätze in elektrisch verstellbaren Betten. Ferner steht ein Kinderbett zur Verfügung.
Küche
Die Küche ist mit Kühlschrank ausgestattet. Außerdem gibt es 4 Induktions-Kochzonen, Umluftofen, Mikrowelle sowie Geschirrspüler.
WC und Bad
Es gibt 1 Badezimmer mit Duschnische und 2 Toiletten, davon 1 Gästetoilette. Fußbodenheizung in 1 Badezimmer.
Multimedien
2 Smart-TV. Radio.1 Bluetooth-Lautsprecher. Keine Fernsehsender - nur Streaming. Es steht kabellose Internetverbindung zur Verfügung.
Wissenswertes
Keine Vermietung an Jugendgruppen, in denen alle 15-25 Jahre sind. Rauchen ist nicht zugelassen. Bei Nichtbeachtung dieses Verbots wird eine Gebühr von mindestens EUR 420,- erhoben.
Ferienhaus auf der Karte und Entfernungen
- Geschäft 3,6 km
- Meer 170 m
Finden Sie benachbarte Ferienhäuser
Diese Suche ist ideal für größere oder befreundete Familien, die unabhängig und doch nahe beieinander wohnen möchten.Siehe benachbarte Häuser
Unsere Gästebewertungen Externe Bewertungen
Preise und Kalender
Kalender
Dauer
Preis
Zeitraum
- Ankunft
- Abreise
- Dauer
- 1 Woche
Personen
Bis zu 8 Personen
Bitte beachten
Ankunftszeit wurde nicht ausgewählt.
Die praktische Abwicklung der Vermietung erfolgt durch einen unserer Geschäftspartner.