Rustikales Ferienhaus mit Wintergarten und Garten
Karl-Marx Straße 52 b - 17495 - Lühmannsdorf
6 Personen
davon 2 Kinder (0-16 Jahre alt)
Rustikales Holzferienhaus in ruhiger Lage mit Blick auf Wiese, nahe Natur und Ostsee, ideal für Familien und Hunde.
Ihre Ferienunterkunft
- 6 Personen
- 1 Haustier
- Nichtraucher
- 2 Schlafzimmer
- 1 Badezimmer
- Wasser 20000
- Einkauf 10000
Ausstattung
Aktivität einrichtungen
-
Radfahren
Entfernungen
-
Zum (Kur-)Park/Wald1 km
-
Zum Arzt1 km
-
Zum Bahnhof6 km
-
Zum Bäcker7,4 km
-
Zum Freizeitpark24 km
-
Zum Geldautomaten/Bank7 km
-
Zum Golfplatz21 km
-
Zum Krankenhaus/Klinik9,5 km
-
Zum Radweg500 m
-
Zum Restaurant500 m
-
Zum Schwimm-/Spaßbad20 km
-
Zum Strand20 km
-
Zum Supermarkt10 km
-
Zum Zentrum9 km
-
Zur Autobahn15 km
-
Zur Badestelle/Gewässer10 km
-
Zur Bushaltestelle100 m
-
Zur Therme52 km
-
Zur Tourist-Information9 km
Grundeinrichtungen
-
Größe95 m²
Kinder einrichtungen
-
Familienfreundlich
-
Kleinkinderausstattung
Serviceeinrichtungen
-
Backofen
-
Bad/WC
-
BADEWANNE
-
Bettwäsche
-
Doppelbett
-
Dusche/WC
-
Ebenerdig
-
Einzelbett
-
Gefriermöglichkeit
-
Getrennt stehende Betten
-
Handtücher
-
Haustiere erlaubt oder auf Anfrage
-
Heizung
-
Hochstuhl
-
Haartrockner
-
Insektenschutz/Gaze
-
Internet - WLAN
-
Kabel / Sat
-
Kissen
-
Kühlschrank
-
Mehrere Schlafzimmer
-
Mikrowelle
-
Nichtraucher
-
Rauchmelder
-
Reise-/Kinderbett
-
Schlafsofa
-
Seife
-
Separate Küche
-
Seperates Grundstück
-
Spülmaschine
-
Terrasse
-
Tiere willkommen
-
Toilettenpapier
-
TV
-
TV - Flachbild
-
Waschmaschine
-
Wohn/Schlafraum komb
-
Wäschetrockner
Umliegende einrichtungen
-
Fahrradunterstellmöglichkeit
-
Garten zur Nutzung
-
Parkplatz
-
Sitzecke im Garten
-
Umzäuntes Grundstrück
Unterkünfte
-
Energiespar-Beleuchtung
-
Grillmöglichkeit
-
Internet im öff. Bereich
-
Nachhaltige Bauweise
-
Nichtraucherhaus
-
Radfreundlich
-
Raucherbereich
-
Wanderfreundlich
-
Wintergarten
Beschreibung
Ferienhaus an der Wiese
• Unser Ferienhaus ist ein massives rustikales Holzhaus, welches 1993 durch eine finnische Firma gebaut wurde.
Es steht abseits von der Straße in ruhiger ländlicher Umgebung mit einem wunderbaren Blick auf eine große Wiese, die landwirtschaftlich genutzt wird.
Hier kann man die Natur in Ruhe genießen und auch die Ostsee ist in der Nähe.
Das Grundstück ist hundesicher eingezäunt und besitzt einen eigenen Carport.
Am Haus gibt es eine befestigten Sitzplatz mit Gartenmöbeln und einem Grill.
Auch ein kleiner Buddelkasten für Kinder ist vorhanden.
Es steht abseits von der Straße in ruhiger ländlicher Umgebung mit einem wunderbaren Blick auf eine große Wiese, die landwirtschaftlich genutzt wird.
Hier kann man die Natur in Ruhe genießen und auch die Ostsee ist in der Nähe.
Das Grundstück ist hundesicher eingezäunt und besitzt einen eigenen Carport.
Am Haus gibt es eine befestigten Sitzplatz mit Gartenmöbeln und einem Grill.
Auch ein kleiner Buddelkasten für Kinder ist vorhanden.
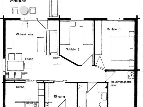
Unser Ferienhaus hat ein großes Wohn-Esszimmer, zwei Schlafzimmer, eine Küche, ein Badezimmer, einen verglasten beheizten Wintergarten und einen Hauswirtschaftsraum.
Im Badezimmer gibt es eine Dusche und eine Badewanne. Die Küche ist mit diversen Haushaltsgeräten wie Backofen mit Dampfgarer, Mikrowelle,Spülmaschine, Kühlschrank mit Frostfach, Kaffeemaschine, Toaster und Radio ausgestattet.
Die Schlafzimmer sind mit einem Doppelbett bzw. zwei Einzelbetten eingerichtet. Im beheizten Wintergarten gibt es ein Schlafsofa.
Im Hauswirtschaftsraum befinden sich eine Waschmaschine, ein Trockner und ein Bügelbrett.
Ein Babyreisebett ( bis 3 Jahre), Kinderstuhl, Wickelunterlage, Spielzeug und Babybadewanne für die Kleinen sind vorhanden.
Spiele, Bücher und einen Fernseher + DVD Player für die Großen helfen bei möglicher Langerweile.
Ein Carport zur Unterstellung eines Autos befindet sich am Haus.
WLAN wird kostenlos zur Verfügung gestellt.
Als Nebenkosten berechnen wir den Gas und den Stromverbrauch. Dieser wird per Zählerstand vor Ort ermittelt und nach den aktuellen Preisen für das Ferienhaus abgerechnet.
Im Badezimmer gibt es eine Dusche und eine Badewanne. Die Küche ist mit diversen Haushaltsgeräten wie Backofen mit Dampfgarer, Mikrowelle,Spülmaschine, Kühlschrank mit Frostfach, Kaffeemaschine, Toaster und Radio ausgestattet.
Die Schlafzimmer sind mit einem Doppelbett bzw. zwei Einzelbetten eingerichtet. Im beheizten Wintergarten gibt es ein Schlafsofa.
Im Hauswirtschaftsraum befinden sich eine Waschmaschine, ein Trockner und ein Bügelbrett.
Ein Babyreisebett ( bis 3 Jahre), Kinderstuhl, Wickelunterlage, Spielzeug und Babybadewanne für die Kleinen sind vorhanden.
Spiele, Bücher und einen Fernseher + DVD Player für die Großen helfen bei möglicher Langerweile.
Ein Carport zur Unterstellung eines Autos befindet sich am Haus.
WLAN wird kostenlos zur Verfügung gestellt.
Als Nebenkosten berechnen wir den Gas und den Stromverbrauch. Dieser wird per Zählerstand vor Ort ermittelt und nach den aktuellen Preisen für das Ferienhaus abgerechnet.
Vor Ort
100,00 Euro Kaution bei Anreise
100,00 Euro Kaution bei Anreise
Ferienhaus auf der Karte und Entfernungen
- Zum (Kur-)Park/Wald 1 km
- Zum Arzt 1 km
- Zum Bahnhof 6 km
- Zum Bäcker 7,4 km
- Zum Freizeitpark 24 km
- Zum Geldautomaten/Bank 7 km
- Zum Golfplatz 21 km
- Zum Krankenhaus/Klinik 9,5 km
- Zum Radweg 500 m
- Zum Restaurant 500 m
- Zum Schwimm-/Spaßbad 20 km
- Zum Strand 20 km
- Zum Supermarkt 10 km
- Zum Zentrum 9 km
- Zur Autobahn 15 km
- Zur Badestelle/Gewässer 10 km
- Zur Bushaltestelle 100 m
- Zur Therme 52 km
- Zur Tourist-Information 9 km
Finden Sie benachbarte Ferienhäuser
Diese Suche ist ideal für größere oder befreundete Familien, die unabhängig und doch nahe beieinander wohnen möchten.Siehe benachbarte Häuser
Unsere Gästebewertungen Externe Bewertungen
Preise und Kalender
Kalender
Dauer
Preis
Zeitraum
- Ankunft
- Abreise
- Dauer
- 1 Woche
Personen
Bis zu 6 Personen
davon 2 Kinder (0-16 Jahre alt)
Bitte beachten
Ankunftszeit wurde nicht ausgewählt.
Die praktische Abwicklung der Vermietung erfolgt durch einen unserer Geschäftspartner.