Ferienwohnung Nordseeblick 108 auf Norderney

Kaiserstraße - 26548 - Norderney

4 Personen
7 Übernachtungen
Ab EUR 797,-
4 Erwachsene 0 Kinder
Moderne Ferienwohnung Nordseeblick 108 auf Norderney mit Balkon und nur 85 m zum Strand.

Ihre Ferienunterkunft

  • 4 Personen
  • Kein Haustier
  • Nichtraucher
  • 1 Schlafzimmer
  • 1 Badezimmer

Ausstattung

Bad

  • Haartrockner
  • Wäschetrockner

Basic

  • Kinder willkommen
  • Nichtraucher
  • Quadratmeter
    44 m²
  • Zimmer
    2

Entfernung

  • Strandentfernung
    85 m

Küche

  • Gefrierfach
  • Küche
  • Microwelle

Unterkunft

  • Aufzug
  • Babybett
    1
  • Betten
    4
  • Doppelbetten
    1
  • Einzelbetten
    1
  • Geschlossene Terrasse
  • Internet
  • Kleiderschrank
  • Rauchmelder
  • Safe
  • TV
  • Waschmaschine
  • WLAN

Beschreibung

Nordseeblick 108

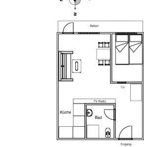
Die Ferienwohnung "Nordseeblick 108" befindet sich im zweiten Stock des Hauses "Nordseeblick". Das Haus liegt in der Kaiserstraße und ist mit einem Fahrstuhl ausgestattet. Die Wohnung bietet Platz für bis zu 4 Personen. Der Strand ist nur ca. 85m entfernt. Auch der Inselkern mit seinen zahlreichen Restaurants, Cafés oder anderen Einkaufsmöglichkeiten ist in wenigen Gehminuten erreichbar. Die Wohnung verfügt über ein Wohn- und Schlafzimmer mit einem Doppelbett. Die kleine Küchenecke ist mit einem 2-Platten-Ceranfeld ausgestattet. Ein Highlight der Wohnung ist der Balkon, der zur Landseite nach Osten ausgerichtet ist. Waschmaschine und Wäschetrockner befinden sich im Haus und stehen (für die gemeinschaftliche Nutzung gegen Münzeinwurf) zur Verfügung, was besonders für längere Aufenthalte von Vorteil ist. Hunde sind in dieser Ferienwohnung nicht erlaubt.

Raumaufteilung

  • Schlafzimmer, 2 Personen
    • Kleiderschrank
    • Doppelbett
  • Wohnzimmer, 1 Person
    • Kleiderschrank
    • Einzelbett

Ferienhaus auf der Karte und Entfernungen

  • Strandentfernung 85 m
Die angezeigte Position des Ferienhauses könnte ungenau sein. Die genaue Adresse ist im Mietvertrag zu finden.

Unsere Gästebewertungen Externe Bewertungen

Keine eigene Gästebewertungen
4,4
17 externe Bewertungen
3,8
september 2025
Allgemein:
Alleinreisend
4,3
juli 2025
Allgemein:
Paar
4,8
juni 2025
Allgemein:
Balkon, Lage
5,0
maj 2025
Allgemein:
Paar
4,0
april 2025
Allgemein:
Paar
4,8
november 2024
Allgemein:
Paar
4,5
oktober 2024
Allgemein:
Alleinreisend
4,5
august 2024
Allgemein:
Paar
4,5
juni 2024
Allgemein:
Paar
5,0
april 2024
Allgemein:
Immer alles sehr sauber und ordentlich beim Einzug.
4,5
marts 2024
Allgemein:
Paar
4,5
marts 2024
4,5
oktober 2023
Allgemein:
Paar
4,0
august 2023
Allgemein:
Paar
4,8
juli 2023
Allgemein:
4
4,0
juli 2023
Allgemein:
Paar
3,8
marts 2023
Allgemein:
Alleinreisend

Preise und Kalender

Kalender

Ankunft
Nächster Monat
  • April 2026
    MoDiMiDoFrSaSo
    1412345
    156789101112
    1613141516171819
    1720212223242526
    1827282930
    19
  • Mai 2026
    MoDiMiDoFrSaSo
    18123
    1945678910
    2011121314151617
    2118192021222324
    2225262728293031
    23
   Verfügbarkeit am ausgewählten Datum prüfen
Frei
Nicht frei
   Ankunft möglich
Dauer
Personen

Preis

Zeitraum
Ankunft
Abreise
Dauer
1 Woche
Personen
Keine Personen ausgewählt

Bitte beachten

Ankunftszeit wurde nicht ausgewählt.
Es wurden keine Personen ausgewählt.
Vertrags- und Mietbedingungen
Die praktische Abwicklung der Vermietung erfolgt durch einen unserer Geschäftspartner.