Ihre Ferienunterkunft
- 6 Personen
- 1 Haustier
- 2 Schlafzimmer
- 2 Badezimmer
Ausstattung
Entfernung
-
Flughafen ZRH174,7 km
Hausinfo
-
Anzahl Badezimmer2
-
Anzahl der Zimmer3
-
Anzahl Schlafzimmer2
-
Balkon
-
Berge Seen
-
Berge wandern
-
Bettwäsche kostenlos
-
Grill
-
Handtücher kostenlos
-
Haustiere1
-
Internet
-
Kühlschrank
-
Mountainbiking
-
Objekt eingeben
-
Rodeln
-
Sauna
-
Schlittschuhbahn
-
Skigebiet
-
Snowboard
-
Spülmaschine
-
TV
-
Waschmaschine
-
Winter-Wanderpfad
-
WLAN
-
Wohnfläche in m²73 m²
Thema
-
Berge Seen
-
Ski-Winter
Beschreibung
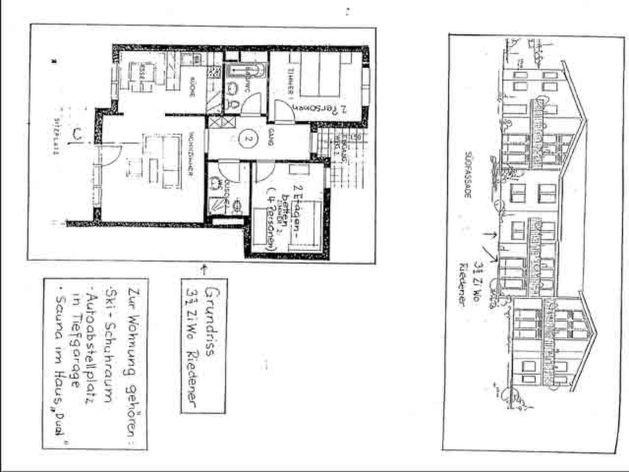
73 m2. Weitere Angaben des Anbieters: Am Dorfrand von Laax, idyllisch ruhig gelegen, befindet sich die 3.5 Zimmerwohnung Casa Migiur. Die helle Parterre-Wohnung bietet auf 73m2 Platz für 6 Gäste. Sie verfügt über einen Garten mit Terasse und Grill, ein Schlafzimmer mit Doppelbett und ein Schlafzimmer mit zwei Etagenbetten. Im Familien-Badezimmer befindet sich eine Badewanne mit Toilette und Waschbecken. Im kleinen Bad ist separat eine Dusche mit Toilette und Waschbecken vorzufinden. Die Küche ist mit einem Glaskeramikherd, Backofen, Spülmaschine und einem Kühlschrank mit Tiefkühlfach, einer Kaffeefiltermaschine, einem Raclette-, Käse- und Chinoise-Fondue-Set ausgestattet. Ein Fernseher, Radio sowie WLAN stehen zur freien Benützung bereit.
Bettwäsche, Endreinigung und ein Set Frottéewäsche pro Person sind im Gesamtpreis enthalten, ebenso die Kurtaxen. Hunde sind in dieser Wohnung auf Anfrage erlaubt und werden mit 10 CHF/Nacht vor Ort verrechnet. Ebenso wird die Benützung der Sauna am Ende des Aufenthalts mit 12 CHF/Benützung vor Ort abgerechnet.
Weitere Angaben des Anbieters: Von der Ferienwohnung ins Zentrum vom Dorf sind es nur 5 Minuten zu Fuss, ebenso zur Bushaltestelle "Demvitg". Der kostenlose Ortsbus fährt Sie in nur 5 Minuten Fahrzeit zu den Bergbahnen nach Laax Murschetg oder nach Flims.Im Haus ist ein Skiraum vorzufinden, in welchem Skis, Snowboards wie auch Schuhe getrocknet und aufbewahrt werden können. Über die Tiefgarage ist das Nebenhaus Casa Dual erreichbar, in welchem eine Sauna zur gemeinsamen Benützung zur Verfügung steht. Ein Reservationsbuch ausserhalb der Sauna regelt die Benützung. Auf Anfrage stellen wir Ihnen gerne ein Reisebett für Kleinkinder zur Verfügung. Bushaltestelle "Laax GR, Demvitg" 0.2 km, Bahnstation "Valendas-Sagogn" 2.0 km, Fähre "Mols (See)" 34.6 km.
Bettwäsche, Endreinigung und ein Set Frottéewäsche pro Person sind im Gesamtpreis enthalten, ebenso die Kurtaxen. Hunde sind in dieser Wohnung auf Anfrage erlaubt und werden mit 10 CHF/Nacht vor Ort verrechnet. Ebenso wird die Benützung der Sauna am Ende des Aufenthalts mit 12 CHF/Benützung vor Ort abgerechnet.
Weitere Angaben des Anbieters: Von der Ferienwohnung ins Zentrum vom Dorf sind es nur 5 Minuten zu Fuss, ebenso zur Bushaltestelle "Demvitg". Der kostenlose Ortsbus fährt Sie in nur 5 Minuten Fahrzeit zu den Bergbahnen nach Laax Murschetg oder nach Flims.Im Haus ist ein Skiraum vorzufinden, in welchem Skis, Snowboards wie auch Schuhe getrocknet und aufbewahrt werden können. Über die Tiefgarage ist das Nebenhaus Casa Dual erreichbar, in welchem eine Sauna zur gemeinsamen Benützung zur Verfügung steht. Ein Reservationsbuch ausserhalb der Sauna regelt die Benützung. Auf Anfrage stellen wir Ihnen gerne ein Reisebett für Kleinkinder zur Verfügung. Bushaltestelle "Laax GR, Demvitg" 0.2 km, Bahnstation "Valendas-Sagogn" 2.0 km, Fähre "Mols (See)" 34.6 km.
Ferienhaus auf der Karte und Entfernungen
- Flughafen ZRH 174,7 km
Finden Sie benachbarte Ferienhäuser
Diese Suche ist ideal für größere oder befreundete Familien, die unabhängig und doch nahe beieinander wohnen möchten.Siehe benachbarte Häuser
Unsere Gästebewertungen Externe Bewertungen
Preise und Kalender
Kalender
Dauer
Preis
Zeitraum
- Ankunft
- Abreise
- Dauer
- 1 Woche
Personen
Bis zu 6 Personen
Bitte beachten
Ankunftszeit wurde nicht ausgewählt.
Die praktische Abwicklung der Vermietung erfolgt durch einen unserer Geschäftspartner.